Each MDU Home is intentionally crafted by interior professionals. The Modern combines sleek, luxurious finishes with panoramic windows and efficient layouts — creating a living space designed for comfort, sophistication, and stress-free living.

All appliances are stainless steel Whirlpool products
Explore The Modern from every angle and see how it fits beautifully into any scenic environment.
































Eco-friendly design and materials
Professional interior design
Premium materials throughout
Integrated smart home features
Built to last with attention to detail
Meets all safety and quality standards
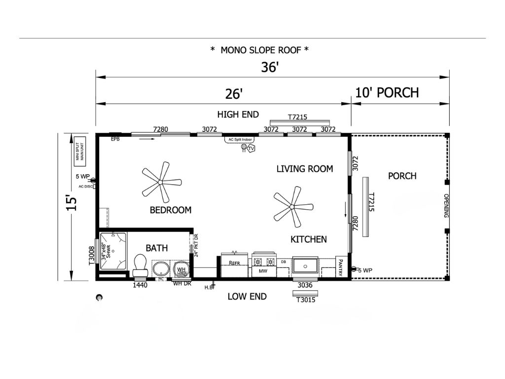
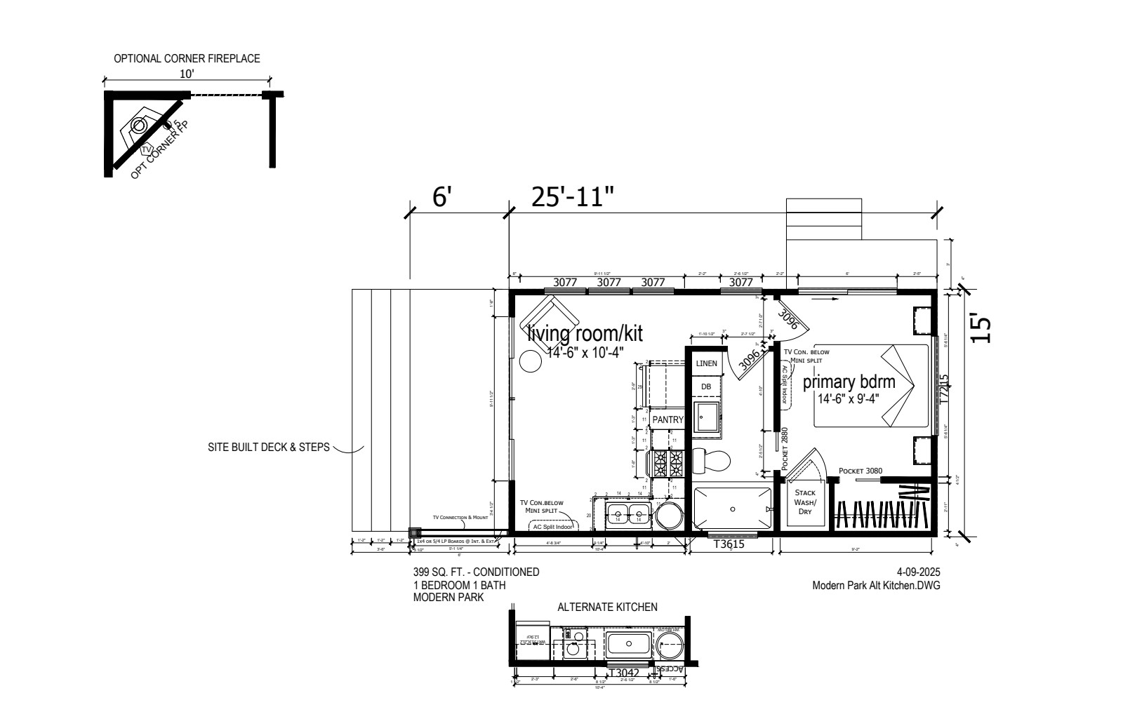
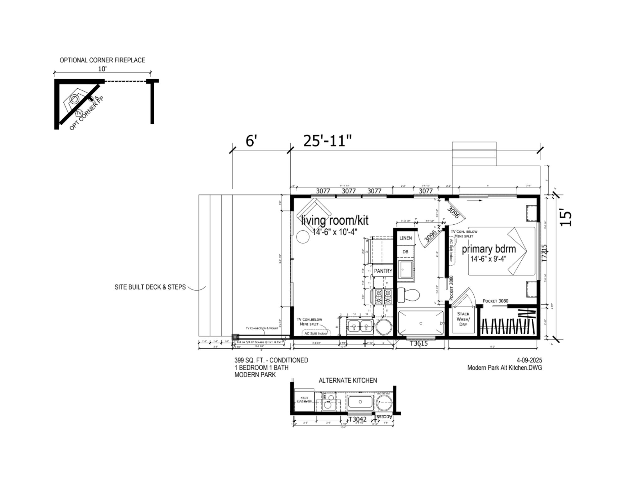
Detailed layouts showing the efficient 399 sq ft design and optional configurations.


Optional upgrade for northern climates requiring heavier roof load capacity.
Save time and money with bulk purchases (15+ units).
Add a 10' wrap-around porch and fireplace.
Whirlpool laundry appliances available as an add-on.
Water, septic, and electric hookups are required. Because codes vary by city, county, and state, customers are responsible for setup. For buyers in North Texas, MDU can recommend trusted contractors. Always check local codes before purchase.
Every MDU Home comes with a 1-year warranty, covering structural integrity and other major components. Designed for durability and ease of maintenance.
Financing: MDU partners with trusted lenders to provide financing solutions for qualifying buyers.
Wholesale Purchase: Perfect for developers seeking rental communities or subdivisions.
Experience the perfect blend of luxury, efficiency, and smart design. Schedule a tour or get a personalized quote today.